330.729.1010
330.729.1008
Search Properties
Search
Toggle navigation
Home
About
About Cocca Development
Company Profile
Licensure and Certification
Staff Directory
Pay Options
Properties
Residential
Commercial
Property Locator
Our Companies
V&R Construction
Anthony Cocca Family Foundation
Cocca Real Estate
Penn-Ohio Title
Children’s Center @ Southwoods
News
Careers
Contact
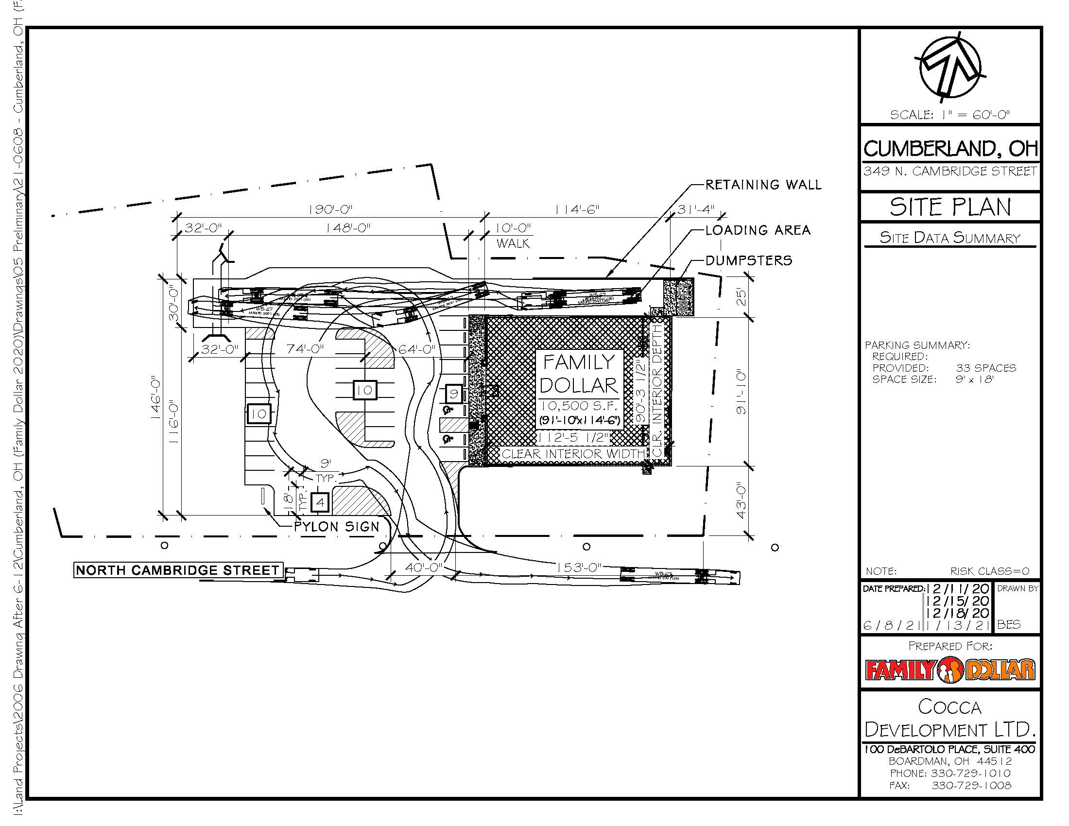
349 Cambridge Street
Property Information
349 Cambridge Street
Cumberland, OH 43732
View Map
Directions
Additional Property Information
10,500 sf Former Family Dollar/Dollar Tree combo store leased to Dollar General – coming early 2025
Photos